Eger ügye
Civilek is páláyzhatnak szakmai programjaik megvalósításához
| Csarnó Ákos
Eger Megyei Jogú Város Önkormányzata pályázatot hirdet az Eger városban működő civil szervezetek támogatására „Civil Alap szakmai programok megvalósítása 2024” címmel.
A pályázat célja: Az Eger város területén működő civil szervezetek közösség érdekében végzett szakmai programjainak, közcélú tevékenységének támogatása, a helyi civil...
Lennél Eger ösztöndíjas diákja?
| Csarnó Ákos
Eger Megyei Jogú Város Önkormányzata pályázatot hirdet felsőfokú oktatási intézmények nappali tagozatos, kiemelkedő tanulmányi eredményt elérő, szociálisan rászoruló, egri hallgatói számára „Eger V...
Lezárják a Gólya utcai gyalogos hidat
| Csarnó Ákos
Újabb híd felújítási munkája veszi kezdetét február 28-án (szerdán) – tájékoztatott az egri önkormányzat.
A Gólya utcai Eger-patak híd rekonstrukciója is régen várat már magára, a felújítás kere...
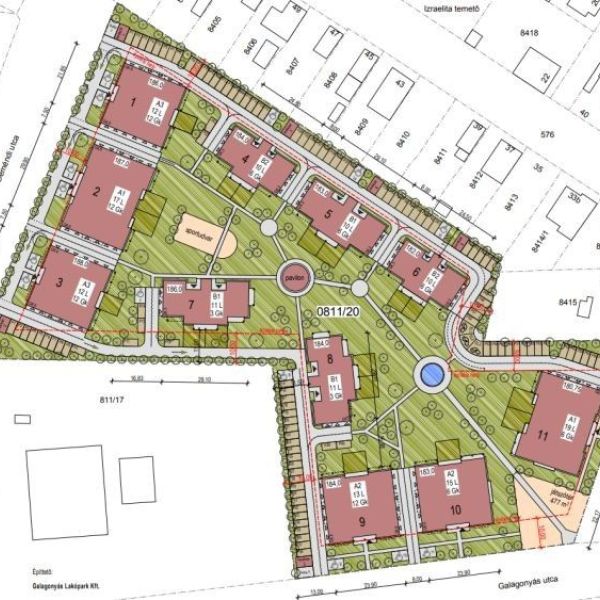
Munkásszállók épülnek a Lajosvárosban?
| Csarnó Ákos
Szerkesztőségünkhöz eljuttatott értesítés alapján február 21-én, szerdán szemle lesz az adott területen (Galagonyás utca környéke).
Ez a Helyi Építési Szabályzat módosítási csomagban szerepl...
Megvan a Fidesz egri polgármester-jelöltje, Vágner Ákost indítja a párt
| Csarnó Ákos
Közgyűlést tartott a Fidesz Egri szervezete február 19-én, amelynek célja Eger polgármesterjelöltjének megválasztása volt. Elhangzott, a Fidesz olyan embert kért fel a feladatra, aki képes békét és...